Arquitetura habitacional em Cabo Verde: (re)conhecimento e desenvolvimento

 

 1

por Andreia Moassab
fotos Omar Camilo
desenhos arq. Yamila Fernandes e arq. Nuno Lobo

 

Preâmbulo sobre as casas na história ou a história das casas

A arquitetura é uma das ciências mais antigas da humanidade, existente desde que os homens e mulheres passaram a se abrigar das intempéries. Aos arquitetos e arquitetas cabe a responsabilidade de projetar e edificar o ambiente habitado pelo ser humano, isto é, materializar espacialmente a cultura de um povo, nos possibilitando entender muito da sua história e de seu ambiente. Neste sentido, estudar as tipologias arquitetônicas do espaço de habitar é de suma importância para uma compreensão social, espacial e territorial de uma sociedade.

Boa VistaBoa VistaO espaço de morar, em toda a sua complexidade e escala (das casas às cidades), ocupa lugar central das questões paradigmáticas desta área do conhecimento. A compreensão dos hábitos de morar dá pistas acerca do meio físico e da organização social: a divisão dos cômodos da casa, ao separarem, por exemplo, servos de senhores ou homens de mulheres, indicam a construção hierárquica de uma dada sociedade. Assim como a pedra, o barro, a madeira, os vãos (muitos ou poucos), estão em acordo com o clima e a disponibilidade de material em cada região do globo terrestre.

Os espaços de morar

Boa VistaBoa VistaA disposição espacial das moradias não é absoluta e uma, como muitos podem inferir, dada a monotonia da espacialização tripartida das casas nos últimos duzentos anos, com base num modelo monofamiliar burguês ocidental. Por exemplo, os pátios internos da arquitetura habitacional árabe em conjunto com as paredes largas e pouquíssimas janelas está em harmonia com o clima quente e seco, ao impedir a alta incidência dos raios solares e a entrada de ar abafado. Ao resfriar e umedecer o ar quente através de árvores, sombreado e fontes de água, o pátio garante que apenas ar fresco entre nas casas, mantendo um ambiente interno termicamente confortável. Ademais, as poucas aberturas voltadas para o exterior não respondem apenas às exigências climáticas mas aos imperativos culturais da sociabilidade voltada para o convívio familiar. Isto é, a casa pode ser compreendida como a tradução espacial da coreografia de relacionamentos sociais que no interior diferem das dinâmicas desenvolvidas no exterior da moradia. Elementos arquitetônicos atuam como filtros (sociais e espaciais) e regulam a transição entre o espaço público e o privado.

Boa VistaBoa Vista

Boa VistaBoa Vista

As casas indígenas no Brasil são construídas, maioritariamente, com material orgânico cuja deteriorização corresponde ao tempo que aquela aldeia deve permanecer em cada local2. É também este material, de folhas e gravetos, o mais indicado para garantir o conforto térmico das habitações. O formato das casas, ovais ou circulares, diz respeito à plasticidade do material, que não permite ângulos retos. O círculo, ademais, está relacionado à organização social das aldeias, muitas com pátio central onde acontecem as reuniões comunais mais relevantes3. A disposição interna das moradas obedece ao mesmo padrão da organização da aldeia: várias famílias instalam-se circularmente no interior sem divisórias das casas Yanomani e Waimiri Atroari, ambas no estado do Amazonas. Ao aprofundar-se ainda mais a análise sobre as moradias indígenas, outras informações podem ser extraídas: a habitação multifamiliar revela os laços de parentesco da aldeia. Sob o mesmo teto estão pais e filhos com suas respectivas famílias. Cada moradia é considerada uma entidade política e econômica autônoma.

Para além das disposições internas das casas, as relações de vizinhança contam sobre estratégias de sobrevivência, de integração ou dissimulação. As comunidades quilombolas no Brasil, com um passado ligado a escravos fugidos, guardam até os dias de hoje as técnicas de “invisilidade” pelo território. Tanto a cor das casas (em terra) quanto a dispersão pelo território dificultam a sua localização pelos capitães do mato (antigos caçadores de escravos fugidos). Na comunidade Kalunga em Goiás, a opção pela construção em adobe (tijolo de terra crua) foi outra das inúmeras estratégias de sobrevivência (ALMEIDA, 2004). Apesar de ter muita pedra na região, preferiu-se construir com adobe tendo em vista garantir a autonomia construtiva, pois trata-se de uma técnica de fácil apreensão e sem a necessidade de mão de obra especializada (ibidem). O volume ortogonal e compacto da habitação tem ligação direta com as construções de algumas regiões africanas, revelando, mesmo através dos séculos, a origem daqueles escravos. A arquitetura é também documento histórico.

Os Dogon, grupo étnico no Mali, conseguiram manter a continuidade das suas tradições. Devido ao seu isolamento geográfico foram pouco afetados por influências externas durante séculos. A cultura Dogon é caracterizada por uma mitologia e espiritualidade complexa que se traduzem diretamente na organização espacial. A concepção, organização e construção do espaço estão em estreita harmonia com o sistema de valores e crenças que define a união desse povo com a natureza. Neste caso, a habitação não é concebida nem construída como um recipiente ou volume autônomo. Ao contrário, está intrica e organicamente conectada aos demais espaços comunitários. A habitação, em simultâneo, reflete e compõe relações sociais e laços familiares, sendo construída para além dos limites de suas paredes. O traçado desses limites diz respeito às diferentes fases do desenvolvimento do indivíduo em seu grupo. Os espaços construídos são tanto a origem como o resultado da tradição cultural, da coesão social e da memória coletiva (ANAHORY, s/d).

Boa Vista elevação N LoboBoa Vista elevação N LoboBoa Vista planta N LoboBoa Vista planta N Lobo

As épocas do morar

Na Europa medieval os espaços de morar eram multifuncionais: cozinhava-se, comia-se e dormia-se no mesmo ambiente. O espaço do trabalho também compartilhava a mesma edificação residencial: as oficinas no rés-do-chão, com acesso pela rua e a habitação em cima ou atrás dela. A separação como conhecemos hoje entre a casa e o ambiente de trabalho só veio muito mais tarde com a revolução industrial e a construção das grandes plantas industriais. Foi neste período que o trabalhador foi definitivamente separado de sua habitação, bem como deixava de ser dono de suas ferramentas de produção.

Esta separação funcional foi aprofundada com o movimento moderno4, que desde finais do século XIX estabelecia um novo paradigma de cidades: as cidades funcionais. Sob estes moldes (com fortes influências até os dias atuais) as cidades devem ser separadas por zonas segundo as funções: habitar, trabalhar, circular, divertir (lazer), conforme constava na Carta de Atenas (LE CORBUSIER, 1989), importante manifesto arquitetônico e urbanístico dos anos 1930. A casa modernista, projetada para o homem ideal em uma sociedade altamente industrializada, previa exíguos espaços privados. A máquina iria libertar o homem do trabalho e este teria mais tempo para o lazer. Neste sentido, a casa deveria ser mínima e os espaços públicos, maximizados. É verdade que o capitalismo não libertou o homem do trabalho, diminuiu os espaços de lazer (todos ocupados pelo capital imobiliário), no entanto, manteve a casa com padrões mínimos… Mas isso já seria outro debate.

S. NicolauS. NicolauA casa do trabalhador do campo apresenta outras especificidades, diversas daquelas da cidade. Nela constam cômodos exclusivos para guardar mantimentos e animais. O acesso é feito por diversos lados e não necessariamente pela “porta da rua”, como acontece com as casas urbanas.

No Brasil colonial, a Casa Grande e Senzala é a estrutura arquitectónica inspiradora para os estudos sociológicos de Gilberto Freire, a qual refletia uma sociedade profundamente seccionada: servos e senhores não transitavam pelos mesmos ambientes. Deste modo, as estruturas de serviço da casa colonial eram bem separadas dos espaços sociais e privados do senhor. Até hoje é possível observar a herança colonial na moradia brasileira quando anúncios publicitários de novos apartamentos insistem em mostrar o “quarto de empregada”, dependência minúscula para dormitório da empregada, com acesso pela área de serviço dos apartamentos. No entanto, a residência do Brasil contemporâneo não é apenas esta com os “quartos de empregada”. Os apartamentos voltados para um público jovem e urbano têm se desfeito completamente da estrutura da casa grande e senzala: a cozinha é aberta para a sala, numa evidência de que cozinhar, nos novos hábitos, passa a ser um encontro social. O dono da casa prepara os alimentos ao mesmo tempo em que recebe seus convidados. Este ambiente, no qual não há a reclusão dos empregados, aponta para uma estrutura social menos dependente de serviçais. Foram necessários mais de 100 anos para iniciar tais mudanças nos hábitos de morar brasileiros, reflexo da lenta transformação nas estruturas sociais.

S. NicolauS. Nicolau

(Re)conhecer para desenvolver: o que nos dizem as habitações sobre o caboverdiano?

Há uma escassa literatura de referência sobre a moradia caboverdiana, o que tem impedido uma análise mais aprofundada e metodologicamente consistente sobre a relação arquitetura/cultura/cotidiano no páis. Alguns estudos têm sido feitos a partir do património edificado, voltados, sobretudo, para os edifícios históricos administrativos e moradias senhoriais (os sobrados), ou para contextos específicos, como é o caso de Cidade Velha, declarada património da humanidade pela Unesco em 2009. Sobre Boa Vista foi publicado um livro sobre o património paisagístico, com breve descrição da morfologia habitacional no seu conjunto, mas não houve neste trabalho um levantamento específico das moradias isoladamente (GONZALEZ, 2007). Igualmente, o inventário do patrimônio arquitetônico da ilha do Maio inclui habitações, não sendo, contudo, o foco do levantamento (ULPGC e CEAR HABITÁFRICA, 2009). Uma outra publicação relacionada de certa maneira com o tema habitacional é o Manual Básico de Construção (LOPES, 2001), orientado para a divulgação de práticas construtivas adequadas ao clima local. Merece ser frisado que os planos diretores municipais no arquipélago não têm incluído sistematicamente a questão habitacional. Por exemplo, o único PDM até hoje publicado – o da cidade da Praia – não apresenta nenhum capítulo dedicado à matéria, limitando-se a apresentar dados do Instituto Nacional de Estadística (INE) sobre o deficit habitacional5.

S.NicolauS.NicolauHoje, em Cabo Verde, algumas perguntas básicas ainda necessitam urgentemente de respostas. Por exemplo: como é a disposição interna da casa cabo-verdiana? Quais os cómodos mais e menos usados? Quais os espaços de sociabilidade e de reclusão? Como se relaciona a moradia com os espaços de vizinhança? Há diferença entre as várias ilhas ou os diversos concelhos nos hábitos de morar? Quais as influências dos hábitos construtivos trazidos pelos emigrantes? Há uma contaminação significativa da população em diáspora das casas cabo-verdianas?

Nesta moldura de total carência de literatura especializada em arquitetura, o Centro de Investigação em Desenvolvimento Local e Ordenamento de Território da Universidade de Cabo Verde – CIDLOT realizou um levantamento da arquitetura habitacional em Cabo Verde6. Tendo em conta que conhecimento de si, para consolidar-se ou reinventar-se deveria representar uma marca fundamental para o desenvolvimento de uma sociedade, esta pesquisa buscou sanar algumas das lacunas para evitar o risco de desperdiçar energia e recursos em projetos descolados da realidade e dos anseios locais, permitindo uma análise mais aprofundada e metodologicamente consistente sobre a relação arquitetura/cultura/cotidiano no país.

S. NicolauS. NicolauEm breves linhas é possível afirmar que o crescimento rápido das cidades cabo-verdianas, com as imigrações/emigrações e, mais recentemente, com as influências e impactos do turismo em certas ilhas, conduziu a mudanças radicais nos hábitos de morar e nas tendências construtivas locais7. Atualmente as disparidades econômicas e sociais definidoras da sociedade são claramente espelhadas no território e nas zonas residenciais das cidades. A análise das habitações construídas tanto nos bairros de alto padrão econômico como naqueles carenciados permite compreender o abandono de certas práticas culturais de habitar e a afirmação de outras.

A solidificação dessas desigualdades tem eliminado a comunalidade dos modos de habitar tradicionais do caboverdiano, característica anteriormente definidora de espaços de sociabilidade. Antigamente, os locais de convívio ao redor das residências compunham uma relação orgânica entre a habitação e as demais zonas do habitat. A transição entre o exterior e interior das casas, aliada aos espaços entre os conjuntos construídos, proporcionava uma dinâmica social e comunitária importante dentro e fora da habitação. Muitos destes elementos estão sendo perdidos hoje. Nos bairros de alto padrão econômico há frequentemente uma escassez de áreas de interação entre a moradia e o espaço público. O resultado é um conjunto pouco ou nada comunitário, composto de fachadas estáticas a minar o que tecnicamente é designado por “unidades de vizinhança”: as fachadas perdem a função de membrana de transição entre o público e privado e adquirem um valor de ostentação. Este processo é indicador de uma sociedade em crise identitária e de valores: o ter sobrepõe-se ao ser e o individual ao colectivo.

S.NicolauS.Nicolau

Sob este aspecto têm sido importadas concepções construtivas muitas vezes pouco adequadas ao clima e à cultura nacional. O estudo dessas tendências – claramente um dos objetivos nodais do Levantamento e Diagnóstico da Arquitectura Habitacional em Cabo Verde (MOASSAB e ANAHORY, 2009) – é essencial para a compreensão do presente e a projeção do futuro da sociedade no arquipélago, procurando soluções mais indicadas à equidade social. Hoje em dia, as forças econômicas e sociais que redesenham o território caboverdiano influenciam de igual modo as suas tendências construtivas e hábitos de morar. Tais forças exercem uma poderosa pressão, levando ao abandono de certas práticas, como a construção em pedra, e à adesão a soluções pouco adaptáveis ao ambiente, como o uso excessivo de concreto e panos de vidro, e à coesão espacial e social. É, portanto, imperativo conhecer as tradições de construção, as práticas culturais e as novas tendências para orientar políticas e práticas construtivas mais convenientes ao país e seus habitantes. Conhecer – no entendimento da pesquisa – torna-se o elemento central para “se reconhecer e para desenvolver”.

Diagnostico participativo: a importância do saber local

Deve frisar-se que a opção metodológica do Levantamento e Diagnóstico da Arquitectura Habitacional em Cabo Verde (ibidem) partiu da valorização do saber local para a definição de zonas tipologicamente homogêneas, ou seja, para delimitar as tipologias habitacionais predominantes em cada um dos concelhos do arquipélago. Com este objetivo foi realizada uma oficina preparatória, para a qual técnicos municipais de todas as Câmaras trouxeram amplo material visual da morfologia habitacional de cada um dos territórios. Investigadores, arquitetos e demais envolvidos debruçaram-se conjuntamente sobre este material durante toda a jornada. O resultado foi a definição de três a sete tipologias predominantes por concelho, as quais seriam depois levantadas detalhadamente no terreno pela equipe do projeto. A participação conjunta das equipes técnicas das Câmaras Municipais e da universidade foi fundamental para os bons resultados da investigação8.

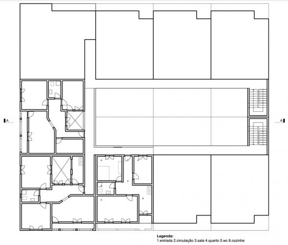
Na primeira etapa da pesquisa foram realizados levantamentos em Santo Antão, São Vicente, São Nicolau, Sal, Boa Vista e Maio, cujo resultado está a ser preparado para publicação do livro Panorama da Arquitetura Habitacional em Cabo Verde – vol I9. São cerca de quarenta moradias detalhadamente catalogadas com fotografias, plantas, cortes, fachadas e delongadas entrevistas com os seus moradores, a fim de solidificar a compreensão sócio-espacial de cada habitação e do conjunto tipológico10. Para a coerência e uniformidade de linguagem dos dados visuais arrolados, optou-se pela inclusão de um fotógrafo profissional na equipa da universidade.

Um dos dados significativos da sondagem no terreno diz respeito ao conforto térmico das habitações, para o qual se tem utilizado um termómetro capaz de medir simultaneamente a temperatura interior e exterior das moradias. Alguns dados preliminares têm revelado uma temperatura até 10o C mais elevada no interior, bastante desconfortável para um país com uma média térmica anual de cerca de 25o C. Ademais, análises arquitetônicas e sociológicas do ponto de vista do patrimônio histórico, da eficiência energética e da relação entre gênero e moradia têm sido acolhidas nesta pesquisa. O resultado será a primeira publicação de âmbito nacional sobre a arquitetura habitacional, um estudo de referência que certamente responderá a algumas destas questões e abrirá novas hipóteses de investigação científica na área.

S. Nicolau elevação Y FernandesS. Nicolau elevação Y FernandesS. Nicolau planta Y FernandesS. Nicolau planta Y Fernandes

Merece salientar-se a importância de conhecer os hábitos de um povo, seja para as empresas atenderem a novos mercados emergentes como para o governo desenhar as suas políticas habitacionais ou profissionais direcionarem a sua prática. A moradia diz respeito à realidade e também às subjetividades de um povo. Como pode a arquitetura responder aos sonhos das pessoas sem perder o contato com a realidade? No contexto caboverdiano, com condicionantes específicas de clima, de economia e de materiais, como podem todos os envolvidos na construção habitacional, dos técnicos, às empresas e governo, atuar em sintonia com os hábitos e o desenvolvimento futuro do país?

Sem conhecer como se mora e quem mora muitos projetos estão fadados ao insucesso. Até hoje, muito tem-se investido em soluções inapropriadas e custosas: está-se a construir para o caboverdiano real? Com materiais adequados? Qual é a qualidade das moradias em termos de eficiência energética e atendimentos às necessidades das famílias? Como é que as novas tendências habitacionais definirão dinâmicas sociais futuras?

Para destrinchar estas perguntas simples e ao mesmo tempo fulcrais, o Levantamento e Diagnóstico da Arquitectura Habitacional em Cabo Verde constituiu um dos cernes da investigação do CIDLOT durante o período 2009-2012. Esta é uma das maneiras como a investigação e a universidade podem efetivamente colaborar em prol do desenvolvimento local: conhecer e reconhecer para desenvolver. Em tempos de um debate mundial sobre sustentabilidade, Cabo Verde tem um amplo potencial para experimentar e desenvolver trabalhos de excelência na área habitacional sustentável, vindo a constituir um polo gerador de conhecimento especializado.

Um esforço conjunto de toda a sociedade, neste rumo, certamente traria resultados positivos, tanto para um aumento da qualidade de vida quanto na geração de renda para o país. O investimento em pesquisas na área da arquitetura e do urbanismo tem, portanto, uma missão basilar: gerar conhecimento e propor um debate aprofundado sobre arquitetura, habitação, ambiente e sociedade.

 

REFERÊNCIAS BIBLIOGRÁFICAS

ALMEIDA, Jaime (2005). “A organização espacial e ocupação territorial no kalunga: A moradia como efetivadora”. In: Revista Paranoá, vol. 7. Brasília: UNB. Disponível em http://www.unb.br/fau/ pos_graduacao. Acesso em 10/01/2010.

ANAHORY, Patrícia (s/d). Cadernos de Viagem pela Arquitetura Africana. Manuscrito cedido pela autora. Não publicado.

FATHY, Hassan (1972). Construindo com o Povo: Arquitetura para os Pobres. Rio de Janeiro: Editora Forense-Universitaria.

GONZALEZ, Javier et allii (2007). Modelo Paisagístico e Arquitectónico: Ilha de Boa Vista. Tenerife: Programa Partenon.

LE CORBUSIER (1989). A Carta de Atenas. São Paulo: Hucitec.

LOPES, Leão (2001). Manual Básico de Construção: Guia Ilustrado para a Construção de Habitação. Mindelo: MITH.

MOASSAB, Andréia e ANAHORY, Patrícia (2009). Levantamento e Diagnóstico da Arquitectura Habitacional em Cabo Verde. Praia: CIDLOT/UNICV. Trabalho técnico. Não publicado.

ULPGC e CEAR HABITÁFRICA (2009). Inventário de Património Arquitectónico de Vila de Maio. Las Palmas de Gran Canaria. Relatório técnico. Não Publicado.

 

  • 1. Os argumentos centrais deste texto foram apresentados anteriormente em dois artigos em co-autoria com Patrícia Anahory, no jornal A Nação, n. 133, 18 a 24/03/10, p. 31 a 33 e na Revista Crítica de Ciências Sociais, n.91, p. 295-298.
  • 2. A maior parte dos grupos indígenas no Brasil tem ciclos espaço-temporais: aldeias são abandonadas e reconstruídas em outro lugar, sazonalmente, em profundo acordo com a recuperação dos solos para a agricultura.
  • 3. É o caso dos Panará (MT/PA); Enawene-Nawe (MT) e Kaikotore (PA).
  • 4. conjunto de orientações culturais que permearam as artes, o design e a arquitetura na primeira metade do século XX.
  • 5. O PDM publicado não foi aprovado. A capital do país está há mais de dez anos a elaborar o seu plano diretor
  • 6. O Levantamento e Diagnóstico da Arquitetura Habitacional em Cabo Verde foi elaborado, em 2009, sob a coordenação de Andréia Moassab e Patrícia Anahory.
  • 7. Este aspecto foi melhor explorado no texto Território e identidade em Cabo Verde: debate sobre a (frágil) construção identitária em contextos recém independentes no mundo globalizado disponível em http://www.buala.org/pt/cidade/territorio-e-identidade-em-cabo-verde-deb...
  • 8. mais de 85% das 22 Câmaras Municipais aderiram a esta investigação (à exceção de São Vicente, Tarrafal de São Nicolau e Ribeira Grande de Santiago).
  • 9. A falta de recursos postergou a finalização do levantamento nas ilhas de Fogo, Brava e Santiago, o qual comporá o segundo volume da publicação.
  • 10. Ao final das duas etapas da pesquisa o trabalho abarcará cerca de cem moradias de todo o território nacional.

por Andréia Moassab
Cidade | 2 Maio 2013 | arquitectura, Cabo Verde, habitação